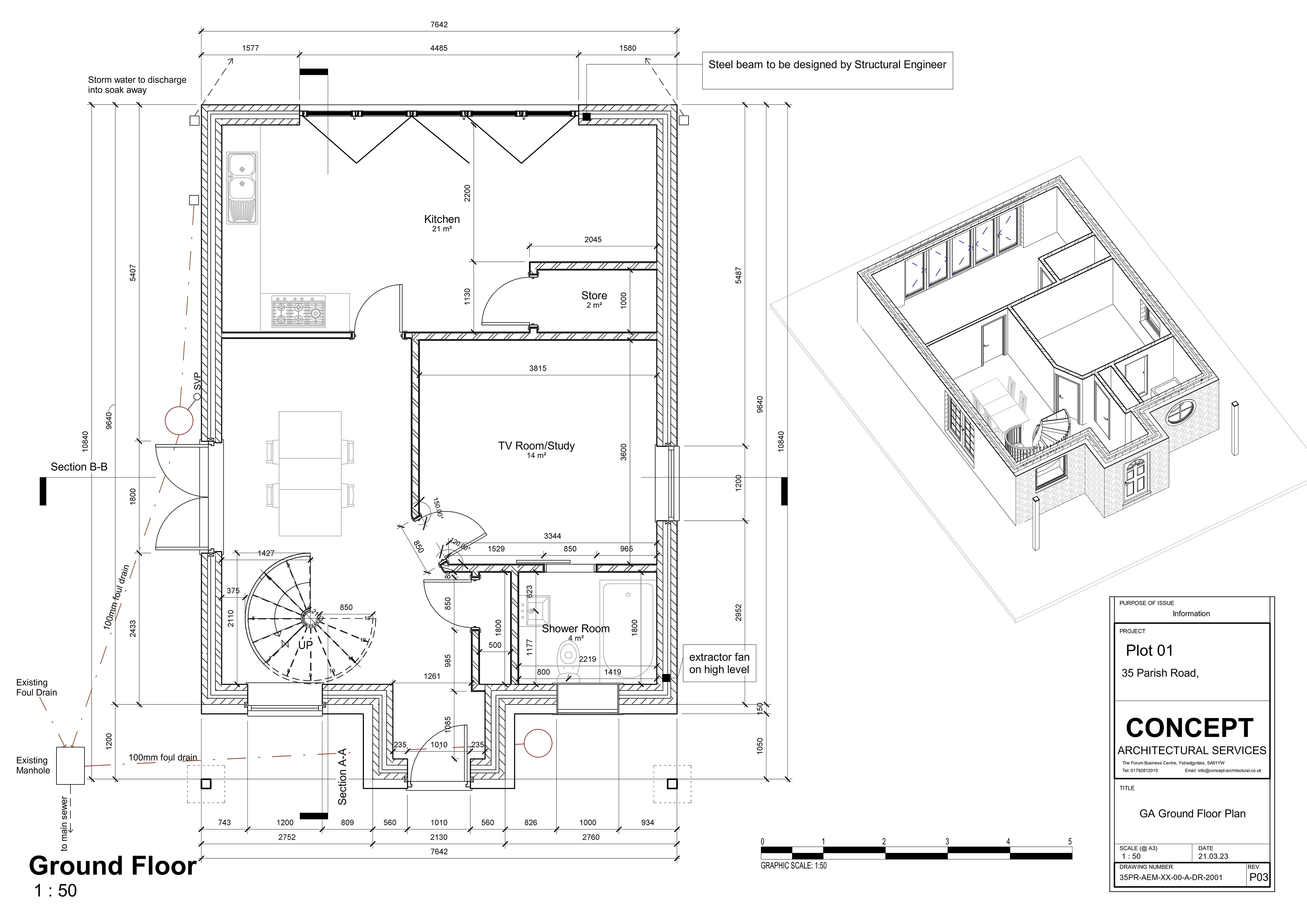
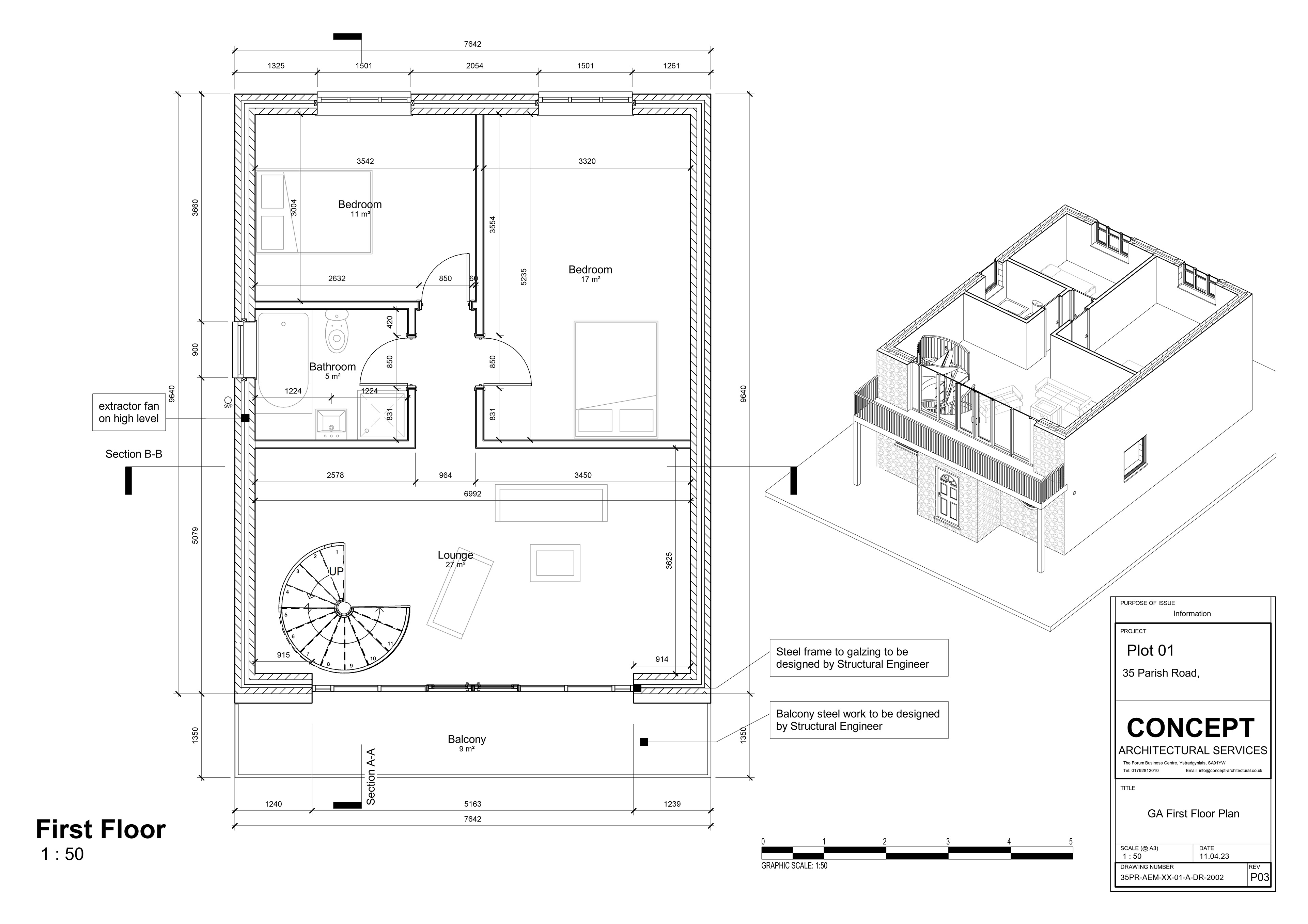
Assisting Mike Wood by providing a Full revit modeled and building regulations compliance drawings set for 3 floors new build house with vaulted ceiling and spiral stairs
We use some essential cookies to make this service work.We’d also like to use analytics cookies so we can understand how you use the service and make improvements.
AcceptDecline